SAHA_Flat
Архитекторы: Альберт Багдасарян, Инна Багдасарян
Площадь проекта: 60 кв.
Год проекта: 2022
Расположение: Саратов, Россия
Фото: Роман Спиридонов

О проекте
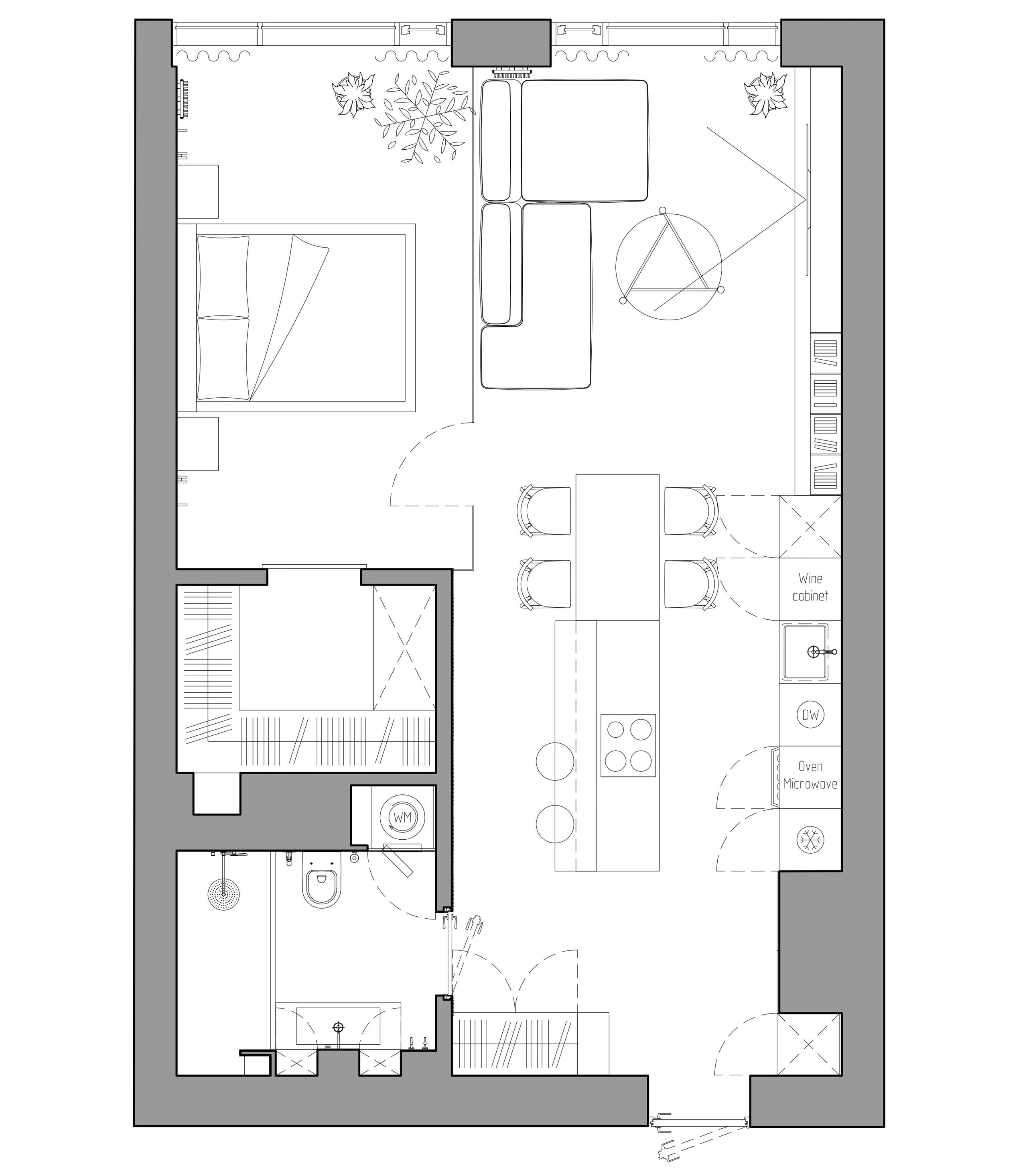
Интерьер для взрослого холостяка, любящего цветы, кошек и женщин! Это не первый раз, когда наша команда создает пространство для холостяка. Квартира расположена в Саратове, в ЖК Volga Sky на 32 этаже площадью 60 м².
Планировка
В исходном состоянии квартира имела ванную комнату и изолированную спальню от кухни-гостиной, которая в свою очередь тоже была изолирована от прихожей. После полного демонтажа, мы выделили ванную комнату, гардеробную, сделали общим пространство прихожей/кухни/гостиной и визуально объединили спальню с общей зоной, благодаря стеклянной перегородке.
Минимальное количество глухих стен, дает возможность создать комфортный open- space на небольшой площади, а стеклянная стена позволила иметь изолированную спальню при этом сохранить свет и легкость пространства.Общее пространство получилось вытянутой формы и состоит из трех зон, это входная часть отсеченная легкой перегородкой, которая также является началом кухни и зона гостиной.
Заходя в квартиру нам открывается вид на панорамные окна с видом на город и Волгу, поэтому мы не хотели лишать удовольствия сразу с порога любоваться видом перекрывая это монументальным зонированием.

Концепция
Интерьер характеризуют простота и чистота форм, интеграция с природой и использование натуральных материалов с цветовой палитрой землистых тонов, прикосновение тканей, тепло дерева, благородство мрамора, грубость камня и бетон смешиваются воедино.
В пространстве преобладает деревянная отделка стен и потолка, натуральный камень и декоративная штукатурка.
Главный герой в отделке интерьера это натуральный камень, который дает нам возможность почувствовать, что в этом пространстве сильный и стильный мужчина. Камень использован в отделке спальни, в сочетании с крупными растениями, черной кожей на изголовье кровати. Каменную стену, для подчеркивания фактуры, подсветили закарнизной подсветкой, также интегрировали трековые светильники с поворотными спотами.
Также камень использовали в отделке душевой в ванной комнате и фраза «сливаешься с природой» тут работает на все сто процентов. Черная сантехника, стеклянная перегородка, четкая геометрия умывальника придает строгости и отельного стиля.
Мессенджеры
Подписаться
УСЛУГИ
Архитектурное проектирование
Дизайн — проект интерьера
Комплектация
Авторский надзор
О СТУДИИ
КОНТАКТЫ
+7 (929) 771-77-73
Заказать проект:




















