
NN_Flat
Архитекторы: Альберт Багдасарян, Инна Багдасарян, Ольга Крайнова, Анастасия Цыганова
Площадь проекта: 83 кв.
Год проекта: 2021
Расположение: Саратов, Россия
Фото: Дмитрий Чебаненко

О проекте
NN_Flat — интерьер квартиры для молодой девушки.
«Нам досталось пространство, полное плюсов, и вдохновляющая заказчица.
Молодая успешная леди, красивая и стильная, она живет активной жизнью,
много трудится. Ее основным пожеланием был интерьер, в котором можно
отдохнуть»






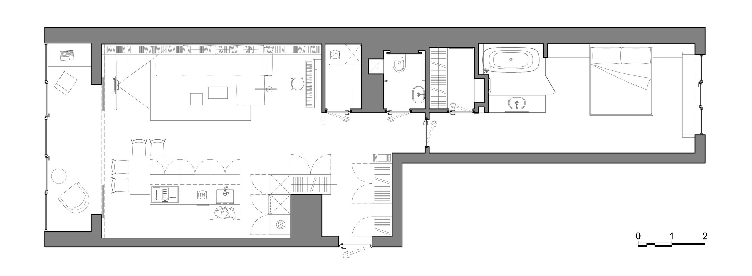
Планировка
Планировку предопределила конфигурация квартиры: вытянутый
прямоугольник, с окнами в торцах. Мы выполнили четкое логичное
зонирование, отказались от коридоров и задействовали потенциал даже
самых компактных помещений. Так что бесполезных квадратных метров здесь
нет. Справа от входа устроен хозяйский блок, включающий спальню,
гардеробную и ванную в стеклянном кубе, слева — опен спейс
гостиной-кухни.

Концепция
Цветовая палитра сложилась природная: ее определяют текстуры дерева и мрамора. Почти вся квартира, стены и потолок, выкрашены в один нейтральный светлый тон, чтобы на его фоне выделялись природные материалы. Спокойная монохромная палитра без ярких акцентов располагает к отдыху.
Знаковый элемент — кухонный остров, созданный индивидуально под этот
проект, отделанный крупноформатной керамикой. «Он встает в интерьере как
современная скульптура. Вся кухонная техника скрыта, чтобы не мешать
восприиятию пространство. В частности вытяжка интегрирована в варочную
панель», — объясняют авторы проекта. Бесспорной удачей они считают и
проработку сценариев освещения: несмотря на небольшое количество
осветительных приборов на потолке, в квартире светло в темное время
суток.























Мессенджеры
Подписаться
УСЛУГИ
Архитектурное проектирование
Дизайн — проект интерьера
Комплектация
Авторский надзор
О СТУДИИ
КОНТАКТЫ
+7 (929) 771-77-73
Заказать проект:
